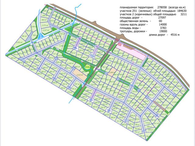
ПРЕДЛОЖЕНИЕ ДЛЯ БИЗНЕСА И НЕ ТОЛЬКО!!!!! ГОТОВЫЙ ПРОЕКТ К ЗАПУСКУ ПРОДАЖ, ЕСТЬ В НАЛИЧИИ ПРОЕКТ ПЛАНИРОВКИ НОВОГО ЭКСКЛЮЗИВНОГО ПОСЕЛКА!!! Объект размежеван на 249 участков разной площади от 600-1200 кв.м. Проделаны работы по геологическим изысканиям, топосьемка. И все это находится всего в 25 км по Дмитровскому шоссе, которые отделяет вас от тихого, зеленого уголка площадью 27,5 га в экологически чистом месте Подмосковья, расположенного всего в 400 м от канала им Москвы и в 300 м от береговой линии Икшинского водохранилища. в настоящий момент ведутся работы по строительству съезда с ЦКАД, что значительно сократит время в пути от столицы. На площадку заведено 600 кВт электричества, согласованы проекты примыкания к поселковой дороге, рядом магистральный газ. Участок расположен на краю д. Протасово, в котором присутствует в полном объеме вся инфраструктура, необходимая для комфортной жизни будущих счастливых обладателей земельных участков, в образованном в последствии коттеджном поселке, в том числе школа, детские сады, поликлиника, в непосредственной близости находится остановка общественного транспорта. . Для привлечения будущих владельцев - рядом расположены: Турбаза Яхрома, более 10-и горнолыжных комплексов: Sky, Сноупарк, Икша, Сорочаны, Волен, Степаново, Спорткомплекс Маяк, Картинг, 3 конных клуба, оборудованные пляжи, причал, стрелковый развлекательный комплекс "Лисья нора", медико-оздоровительный комплекс "Славино", со Спа-центром, бассейном, сауной, русской баней, теннисными кортами, тренажерным залом. Если у Вас остались вопросы, звоните нам и мы с удовольствием на них ответим. P.S. Рассматривается возможность продажи частями не менее 13 га.


























































































