Мы используем куки-файлы. Соглашение об использовании
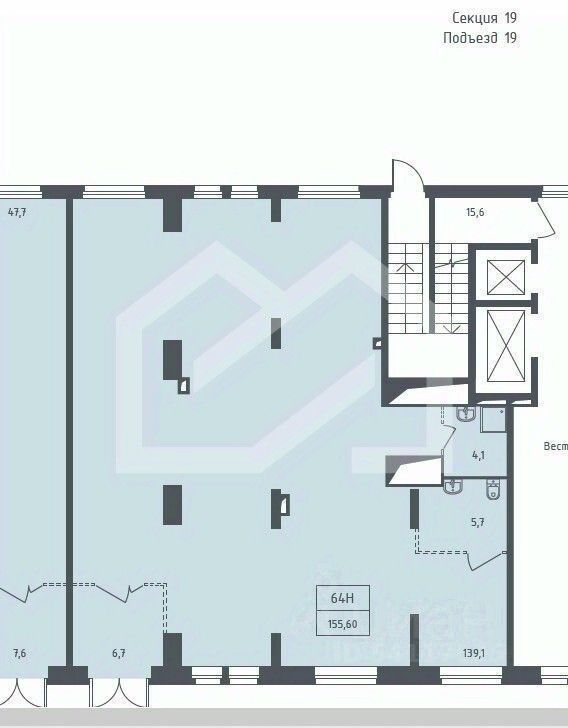
Помещение свободного назначения, 155 м²

Сдается помещение свободного назначения, 155 м²

Площадь155 м²
Этаж1 из 17
Отчёт о привлекательности объектаУзнайте, насколько помещение и район подходят для вашего бизнеса
Что входит в отчёт
  • Охват населения
  • Пешеходный трафик
  • Автомобильный трафик
  • Средний бюджет семьи по району
  • Арендные ставки рядом
  • Точки притяжения
  • Конкуренты в радиусе 1 км
  • Рекомендации по выбору места для бизнеса
950376. Предлагаем помещение свободного назначения в ЖК "Мытищи Парк", площадью 155 кв. м, расположенное на первом этаже 17-этажного жилого дома. Преимущества объекта: -ЖК состоит из 7-ми 17-этажных корпусов, рассчитанных на 9 048 квартир; -8 минут на автомобиле от ж/д станции Челюскинская, 20 минут на автомобиле от станции метро "Медведково"; -удобная транспортная доступность: 2.5 км до Пироговского шоссе, 3 км до Олимпийского проспекта, 4 км до Волковского шоссе, 5.6 км до Ярославского шоссе; -плотный жилой массив; -ЖК включает 3 детских сада, 2 школы и физкультурно-оздоровительный комплекс; -развитая инфраструктура района; -рядом с помещением расположен магазин - Магнит; -высокий автомобильный и пешеходный трафик; -отлично просматривается, находится в легком доступе для потенциальных клиентов; -гибкая планировка, позволяющая адаптировать пространство под различные нужды; -возможность демонтажа тамбура; -витринное остекление; -место для размещения вывески; -зона погрузки/разгрузки; -перед фасадом расположена просторная парковка на 250 машиномест. Технические параметры объекта: -отдельный вход с улицы. -электрическая мощность: 29 кВт. -высота потолков: 3.5 м. Свяжитесь с нами для получения дополнительной информации!
lock

Войдите или зарегистрируйтесь
для просмотра информации

Просматривайте условия сделки и всю информацию об объекте
Сохраняйте фильтры в поиске и не вводите заново
Доступ к избранному с любого устройства
Неограниченное добавление в избранное
Позвоните автору
Вам ответят на все вопросы
Остались вопросы по объявлению?
Позвоните владельцу объявления и уточните необходимую информацию.
  • Инфраструктура
  • Похожие рядом
  • Тип зданияЖилой комплекс
  • Общая площадь155 м²
Помощь надёжных риелторов
Риелтор партнёр Циан поможет купить или продать любую недвижимость
350 000 ₽/мес.

Прямая аренда (от года), предоплата за 1 месяц

4 928 $/мес.
4 235 /мес.
Цена за метр
27 097 ₽ в год
Налог
УСН
Комиссия
нет
Коммунальные платежи
не включены
Эксплуатационные расходы
не включены
Агентство недвижимости
Документы проверены