Мы используем куки-файлы. Соглашение об использовании
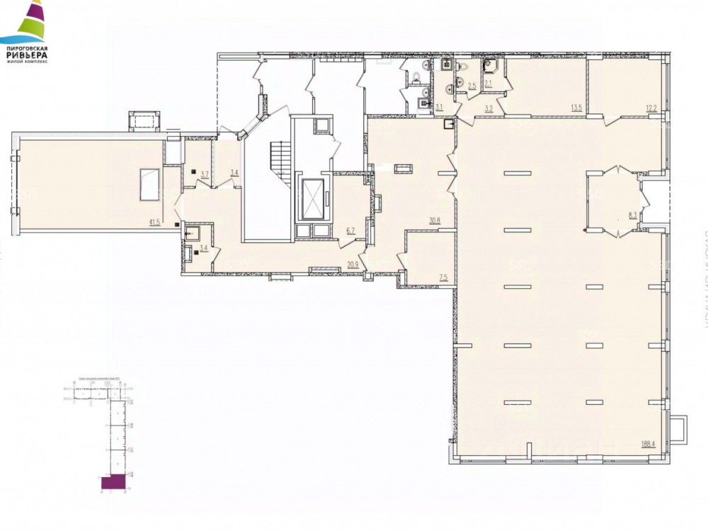
Торговая площадь, 349,8 м²
Площадь349,8 м²
Этаж1 из 9
ПомещениеСвободно
Отчёт о привлекательности объектаУзнайте, насколько помещение и район подходят для вашего бизнеса
Что входит в отчёт
  • Охват населения
  • Пешеходный трафик
  • Автомобильный трафик
  • Средний бюджет семьи по району
  • Арендные ставки рядом
  • Точки притяжения
  • Конкуренты в радиусе 1 км
  • Рекомендации по выбору места для бизнеса
Лот 152693. Сдается в аренду помещение свободного назначения в ЖК Пироговская Ривьера (комфорт класс), по адресу: МО, Мытищи городской округ, Пирогово деревня, ул. Ильинского, 8., расположенное в 12 км от МКАД по Осташковскому шоссе. На данный момент в ЖК живет уже около 8500 жителей. В 100 метрах крупнейший пляж на Пироговском водохранилище (в сезон очень высокий трафик) Технические характеристики: Общая площадь 349,8 м2. 1-й этаж стилобатной части жилого дома. Отдельная входная группа. Витринное остекление. Высота потолков 3.3 м. Зона разгрузки. Эл. Мощность 34 кВт. Имеется технологическая вытяжка. Коммерческие условия: Аренда в месяц - 595 000 руб. Ставка за м2 - 1 700 руб. Форма собственности - физ.лицо.
lock

Войдите или зарегистрируйтесь
для просмотра информации

Просматривайте условия сделки и всю информацию об объекте
Сохраняйте фильтры в поиске и не вводите заново
Доступ к избранному с любого устройства
Неограниченное добавление в избранное
Позвоните автору
Вам ответят на все вопросы
Остались вопросы по объявлению?
Позвоните владельцу объявления и уточните необходимую информацию.
  • Инфраструктура
  • Похожие рядом
  • Общая площадь349,8 м²
Помощь надёжных риелторов
Риелтор партнёр Циан поможет купить или продать любую недвижимость
595 000 ₽/мес.
7 820 $/мес.
6 655 /мес.
Цена за метр
20 412 ₽ в год
Налог
УСН
Комиссия
нет
Коммунальные платежи
не включены
Эксплуатационные расходы
не включены
Агентство недвижимости
Документы проверены
На Циан
9 лет
Объектов в работе
более 2000
Риелтор