Мы используем куки-файлы. Соглашение об использовании
Помещение свободного назначения, 185,1 м²

Продается помещение свободного назначения, 185,1 м²

Площадь185,1 м²
Этаж1 из 25
ПомещениеСвободно
Отчёт о привлекательности объектаУзнайте, насколько помещение и район подходят для вашего бизнеса
Что входит в отчёт
  • Охват населения
  • Пешеходный трафик
  • Автомобильный трафик
  • Средний бюджет семьи по району
  • Арендные ставки рядом
  • Точки притяжения
  • Конкуренты в радиусе 1 км
  • Рекомендации по выбору места для бизнеса
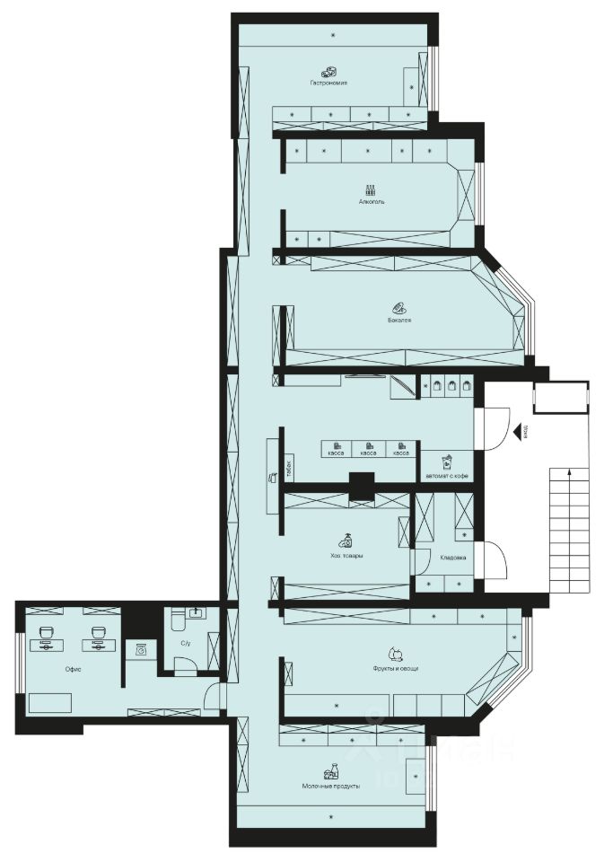
Продается помещение с действующим продуктовым магазином формата у дома и надежным арендатором, работающим более 10 лет. Магазин стабильно пользуется спросом в районе и обеспечивает предсказуемый арендный поток. Помещение без перепланировок и нарушений, два отдельных входа, используется по назначению. Арендатор остается после сделки, что дает покупателю готовый пассивный доход с первого дня. Срок окупаемости объекта по текущему арендному потоку — 10 лет, объект в ипотеке ВТБ (возможна прозрачная сделка с участием банка). Детальная финансовая модель, структура арендных платежей и условия продажи — по телефону. Так же возможен перевод долга по ипотеке на нового покупателя.
lock

Войдите или зарегистрируйтесь
для просмотра информации

Просматривайте условия сделки и всю информацию об объекте
Сохраняйте фильтры в поиске и не вводите заново
Доступ к избранному с любого устройства
Неограниченное добавление в избранное
Позвоните автору
Вам ответят на все вопросы
Остались вопросы по объявлению?
Позвоните владельцу объявления и уточните необходимую информацию.
  • Инфраструктура
  • Похожие рядом
  • Общая площадь185,1 м²
Естественная вентиляция
Местное кондиционирование
Центральное отопление
Помощь надёжных риелторов
Риелтор партнёр Циан поможет купить или продать любую недвижимость
37 700 000 ₽
494 434 $
422 944
Цена за метр
203 674 ₽
Налог
НДС включен: 6 798 360 ₽
Агентство недвижимости
Суперагент