Мы используем куки-файлы. Соглашение об использовании
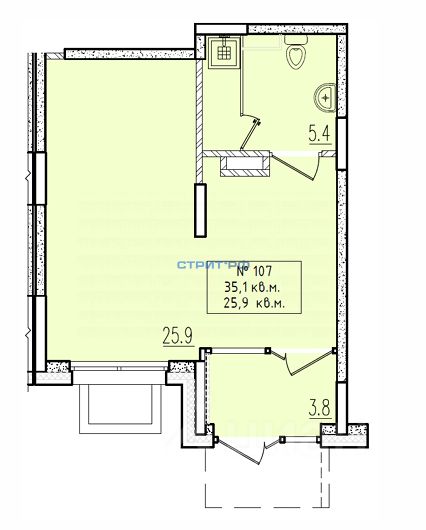
Помещение свободного назначения, 35 м²
Площадь35 м²
Этаж1 из 9
Отчёт о привлекательности объектаУзнайте, насколько помещение и район подходят для вашего бизнеса
Что входит в отчёт
  • Охват населения
  • Пешеходный трафик
  • Автомобильный трафик
  • Средний бюджет семьи по району
  • Арендные ставки рядом
  • Точки притяжения
  • Конкуренты в радиусе 1 км
  • Рекомендации по выбору места для бизнеса
Арт. 129910401 Помещение свободного назначения в ЖК "Пироговская Ривьера" МО, г. Мытищи, ул. Ильинская, д.8 корп.1 О помещении: Общая площадь 35 м2 Вход с улицы Центральные коммуникации О локации: Современный ЖК Густонаселенный массив Собственная инфраструктура 30 мин езды до станции метро "Медведково" Стоимость: 8 750 000 рублей Звоните!
lock

Войдите или зарегистрируйтесь
для просмотра информации

Просматривайте условия сделки и всю информацию об объекте
Сохраняйте фильтры в поиске и не вводите заново
Доступ к избранному с любого устройства
Неограниченное добавление в избранное
Позвоните автору
Вам ответят на все вопросы
Остались вопросы по объявлению?
Позвоните владельцу объявления и уточните необходимую информацию.
  • Инфраструктура
  • Похожие рядом
  • Общая площадь35 м²
Центральное отопление
Помощь надёжных риелторов
Риелтор партнёр Циан поможет купить или продать любую недвижимость
8 750 000 ₽
122 734 $
105 693
Цена за метр
250 000 ₽
Налог
УСН
Агентство недвижимости
Риелтор
Суперагент