Мы используем куки-файлы. Соглашение об использовании
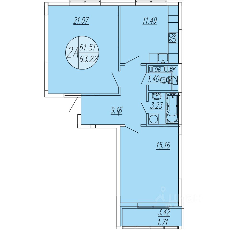
Общая площадь63,93 м²
Этаж4 из 4
Год сдачи2026
ДомНе сдан
ОтделкаЧистовая
ЖК "Шолохово" - это малоэтажный комплекс, расположенный на Дмитровском шоссе в 16 км и всего 20 минут езды от МКАД. С одной стороны комплекса протекает река, а с другой - раскинулся большой лесной массив. ЖК разделен на комфортные небольшие кварталы, внутри каждого - уютный зеленый двор с детской площадкой. На каждую квартиру приходится как минимум одно парковочное место, а дорога от подъезда до автомобиля займет не более 3 минут. Дома I и II очереди построены, распроданы и заселены, сданы и запущены объекты инженерной инфраструктуры комплекса. Работают магазины, кафе, медцентр, аптека, салоны красоты, и другие, необходимые для комфортного проживания объекты инфраструктуры. Представьте, что можно встречать каждый день на свежем воздухе и наслаждаться красотой природы - запахи травы, леса и дождя, пение птиц, возможность побыть в тишине и при этом не лишать себя комфорта городской квартиры. Именно с такой идеи о спокойной и комфортной жизни началось строительство ЖК "Шолохово".

О квартире

Тип жилья

Новостройка

Общая площадь

63,93 м²

Высота потолков

2,82 м

Отделка

Чистовая

О доме

Тип дома

Монолитно-кирпичный

Парковка

Наземная

Пандус

Есть

Понравилась квартира — узнайте о ней больше

Застройщик ответит на все вопросы

Отделка квартиры

Чистовая: ремонт сделан, остаётся расставить мебель и заселиться

Отделка в ЖК

  • Чистовая
  • Предчистовая
  • Без отделки

3D-тур

Посмотрите 3D-тур, чтобы оценить объект

О ЖК «Шолохово»

  • Сдача комплекса
    Сдача в 2 кв. 2026, есть сданные
  • Застройщик
    РосЕвроСити
  • Класс
    Эконом
  • Тип дома
    Монолитно-кирпичный
  • Парковка
    Гостевая
  • Отделка
    Без отделки, предчистовая, чистовая
  • Тип комплекса
    Жилой комплекс
Похоже на то, что вы ищете?

Особенности жилого комплекса

  • Отделка

  • Парковка

  • Внутренний двор

  • Архитектура

  • Входная группа

Подробнее о жилом комплексе

Акции в ЖК «Шолохово»

Узнайте про персональные условия и дополнительные скидки при покупке квартиры у застройщика

Материнский капитал

Ипотечный калькулятор
  • Базовая
  • Семейная
  • ИТ-ипотека
  • 20%
  • 30%
  • 40%
  • 50%
лет
  • 10 лет
  • 20 лет
  • 30 лет
Загружаем предложения от застройщика и банков
Корпус проверен наш.дом.рф
Обновлено 7 апреля 2026
  • Нет в реестре проблемных объектов
  • Застройщик не банкрот
  • Есть эскроу счёт
  • Актуальные фото стройки

Ещё квартиры в жилом комплексе

356 квартир в продаже · Сдача в 2 кв. 2026, есть сданные
Автор объявления

Застройщик «РосЕвроСити»

«РосЕвроСити» (ООО «РЕ-СИТИ») — девелоперская компания Консорциума «РосЕвроГрупп», представленного на рынке недвижимости с 1997 года. «РосЕвроСити» в 2007 году была выделена из структуры «РосЕвроДевелопмент» (девелопер Консорциума) со специализацией «Ком...
11 103 576 ₽
Цена за метр
173 683 ₽/м²
Условия сделки
долевое участие (214-ФЗ)
Бесплатно найдём новостройкуИ поможем на сделке