Мы используем куки-файлы. Соглашение об использовании
Только на Циан

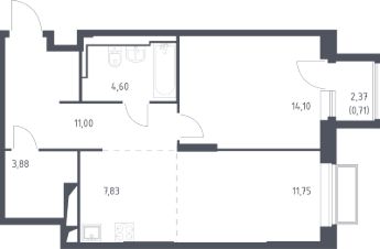
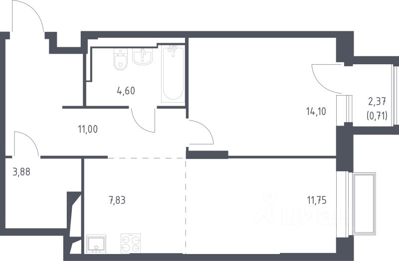
Продается 1-комн. квартира, 53,9 м²

Транспортная доступность 4,9 из 10Подробнее
Общая площадь53,9 м²
Этаж8 из 24
Год сдачи2025
ДомСдан
Продаётся 1-комнатная квартира в сданном доме (Корпус 2), срок сдачи: IV-кв. 2025, общей площадью 53.87 кв.м., на 8 этаже. Новый жилой комплекс комфорт-класса на границе с Москвой, недалеко от набережной реки Яузы. Взяв за основу уникальную историю и современные решения, мы создаем квартал нового уровня для комфортной жизни. Безбарьерная среда, стильная архитектура, многообразие планировочных решений и уютный двор-сад, закрытый от посторонних - все это "Долина Яузы".

О квартире

Тип жилья

Новостройка

Общая площадь

53,9 м²

Высота потолков

2,7 м

О доме

Тип дома

Монолитный

О ЖК «Долина Яузы»

  • Сдача комплекса
    Сдача в 3 кв. 2026, есть сданные
  • Застройщик
    Группа Самолет
  • Класс
    Комфорт
  • Тип дома
    Монолитный
  • Парковка
    Отдельная многоуровневая
  • Отделка
    Без отделки, предчистовая, чистовая
  • Тип комплекса
    Жилой комплекс
Похоже на то, что вы ищете?

Особенности жилого комплекса

  • Отделка

  • Внутренний двор

  • Парки

  • Архитектура

  • Входная группа

  • Лифт

Подробнее о жилом комплексе
Ипотечный калькулятор
  • Базовая
  • Семейная
  • ИТ-ипотека
  • 20%
  • 30%
  • 40%
  • 50%
лет
  • 10 лет
  • 20 лет
  • 30 лет
Загружаем предложения от застройщика и банков
Корпус проверен наш.дом.рф
Обновлено 5 февраля 2026
  • Нет в реестре проблемных объектов
  • Застройщик не банкрот

Ещё квартиры в жилом комплексе

55 квартир в продаже · Сдача в 3 кв. 2026, есть сданные
Консультант
Циан
  • 6 лет 3 месяца на Циане
  • 8774 объявления
  • 20 815 964 ₽
    Цена за метр
    386 196 ₽/м²
    Условия сделки
    свободная продажа
    Бесплатно найдём новостройкуИ поможем на сделке
    Консультант
    Циан