Мы используем куки-файлы. Соглашение об использовании
Только на Циан
Общая площадь191 м²
Участок5 сот.
Этажей в доме2
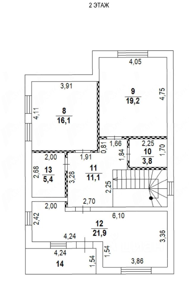
Продам дом в 5 км от МКАД! Построен с соблюдением всех строительных норм. Фундамент - монолитная плита, перекрытия - монолитный, стены - газосиликатный блок. Произведена разводка всех коммуникаций, электрики, отопления и водоснабжения с использованием высококачественных дорогих материалов, крыша из мягкой кровли. Дом подключен к центральному водопроводу, центральной канализации, подана заявка на подключение к центральному газопроводу, заведен интернет. В настоящее время оборудовано электрическое отопление и нагрев воды. В доме на первом этаже просторная кухня-гостиная, гостевая спальня/кабинет, борйлерная, санузел, выход на террасу. На втором этаже 3 спальни, выход на балкон, просторный санузел и гардеробная. Дом полностью готов к чистовой отделке, частично установлено сантехническое оборудование. Готовы сделать чистовую отделку. Отличные подъездные пути - асфальт. Дом имеет выход на 2 дороги: центральный въезд с основной дороги и выход на закрытый проезд, организованные для 9-ти домов, огороженных в едином стиле. Выход в лес, очень приличное окружение, зеленые ухоженная территория и многолетние деревья. Место очень тихое. Ровный и сухой участок. Имеется три въезда: со стороны Афанасовского шоссе, с Дмитровского шоссе, со стороны яхт-клуба Адмирал. Хорошая инфраструктура, частные и государственные детские сады и школы, продуктовые магазины. В пешей доступности автобусная остановка (маршрут до метро Алтуфьево). В 4 км. Клязьминское водохранилище: яхт-клуб Адмирал (с прокатом водной техники, песчаными пляжами). Дом находится недалеко от Клязьминского лесопарка. В 4 км. открылось метро "Физтех"! Документы в порядке, возможен обмен на квартиру с доплатой, звоните!
Позвоните автору
Вам ответят на все вопросы

О доме

Площадь

191 м²

Количество этажей

2

Количество спален

5

Об участке

Площадь

5 сот.

Статус участка

Индивидуальное жилищное строительство

Коммуникации и удобства

Водоснабжение

Центральное

Отопление

Электрическое

Электричество

Есть

Спросите умного помощника
Получите экспертное мнение о жилье

Расположение

Подпишитесь на объявления в этой локации
Мы сообщим, как только поблизости появится что‑нибудь новенькое
Ипотечный калькулятор
  • Базовая
  • Семейная
  • ИТ-ипотека
  • 20%
  • 30%
  • 40%
  • 50%
лет
  • 10 лет
  • 20 лет
  • 30 лет
Загружаем предложения от застройщика и банков
Хотите продать недвижимость?Разместите объявление на ЦианРазместить
27 500 000 ₽
Эксперт от ЦианаПомощь с поиском и сделкой
Цена за метр
143 979 ₽/м²
Ипотека
возможна
Агентство недвижимости
Риелтор
Суперагент
5,0・4