220 000 ₽/м²
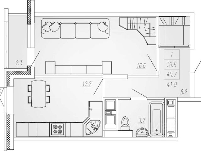
Продаётся 1-комнатная квартира в сданном доме ( Медицинская улица, 2А (Корпус 6)), срок сдачи: III-кв. 2025, общей площадью 23.5 кв.м., на 3 этаже. ЖК "Отрадный" это: - презентабельные монолитные дома с красивыми холлами и лифтами класса "люкс"; - комфортные квартиры с отделкой; - отдельно стоящий многоуровневый паркинг; - вся инфраструктура благоустроенного района: детские и спортивные площадки, детские сады, школы, стадион, спорт. школа с бассейном, магазины, торгово-развлекательные центры с кинотеатрами, аптеки, банки, городская клиническая больница, а также рядом находятся национальный парк "Лосиный остров" и аква-парк; - удобное транспортное сообщение: в пешей доступности ж/д станция Мытищи - от неё можно доехать скоростной электричкой до центра Москвы за 18 минут; с расположенного неподалеку автовокзала курсируют автобусы до Пироговского водохранилища, ТРЦ "Июнь" и многих других мест; 10 минут пешком до остановки на Ярославском шоссе, откуда автобусом до м. ВДНХ 15 минут. Продам 1-комнатную квартиру в микрорайоне Леонидовка в городе Мытищи.





















































































