Только на Циан
Онлайн-бронирование
сдача ГК: 3 кв. 2026 года
Медведково
14 минут на транспорте
18 470 000 ₽
343 245 ₽/м²
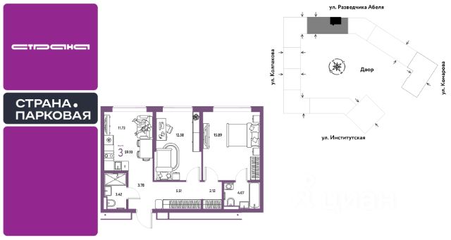
Продаётся 3-комнатная квартира в строящемся доме (Дом Перов), срок сдачи: III-кв. 2026, общей площадью 53.81 кв.м., на 20 этаже. Многоэтажные жилые дома с объектами инфраструктуры, расположенные по адресу: Московская область, г.о. Мытищи, г.Мытищи, мкр. 18Б, ул. Комарова.






















































































