


213 514 ₽/м²
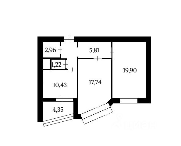
Продаёт собственник. Посредников просьба не беспокоить. Безопасная сделка через Сбербанк. Обременений нет. Без долгов. Торг уместен. Быстрый выход на сделку. Продаётся 1-комнатная квартира на комфортном 2 этаже в районе с хорошей инфраструктурой и удобной транспортной доступностью. Хороший вариант как для собственного проживания, так и для инвестиции. Дополнительное преимущество — в доме сейчас проводится капитальный ремонт. Выполняется облицовка фасада современными панелями и дополнительное утепление. Дом приобретает современный, более аккуратный и привлекательный внешний вид, становится более тёплым и комфортным для проживания. Квартира светлая, окна выходят на улицу. Планировка удобная и функциональная: в коридоре установлен встроенный шкаф, что уже решает вопрос с хранением вещей. Большой балкон — отдельное преимущество, которое можно использовать как дополнительное место для хранения, зону отдыха или обустроить по своему усмотрению. Санузел совмещённый. Лифт в рабочем состоянии, домофон есть. Квартира продаётся без мебели, что позволяет новому собственнику не переплачивать за чужую обстановку и оформить пространство полностью под себя. Район удобный для жизни и хорошо связан с Москвой. Основные остановки общественного транспорта находятся всего в 1 минуте от дома. До железнодорожной станции — около 10 минут пешком, до Москвы на электричке — около 10 минут. Есть удобное прямое автобусное сообщение до метро Медведково, что делает ежедневные поездки быстрыми и комфортными. Ещё один большой плюс — удачное окружение. Рядом находится водохранилище с пляжами, прогулочными зонами и возможностями для отдыха у воды. В тёплое время года это отличное место для прогулок, спокойного отдыха, занятий водными видами спорта и семейного досуга. Недалеко расположен и лесной массив — прекрасное место для прогулок, отдыха на свежем воздухе, прогулок с детьми, пробежек и поездок на велосипеде. Такое сочетание городской инфраструктуры, хорошей транспортной доступности и близости к природе делает локацию особенно комфортной для жизни. Квартира подойдёт тем, кто ищет практичный, понятный и ликвидный вариант с прозрачными условиями сделки. Удачное расположение, комфортный этаж, удобная планировка, развитая инфраструктура, капремонт дома и возможность торга делают это предложение действительно привлекательным. Квартира (вторичка) от собственника в городском округе Мытищах Московской области.



















































































