Только на Циан
сдача ГК: 3 кв. 2027 года
Медведково
18 минут на транспорте
6 923 000 ₽
230 000 ₽/м²
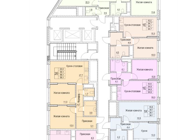
Продаётся 1-комнатная квартира в строящемся доме (Корпус 5), срок сдачи: III-кв. 2027, общей площадью 30.1 кв.м., на 5 этаже. ЖК "Отрадный" это:
- презентабельные монолитные дома с красивыми холлами и лифтами класса "люкс";
- комфортные квартиры с отделкой;
- отдельно стоящий многоуровневый паркинг;
- вся инфраструктура благоустроенного района: детские и спортивные площадки, детские сады, школы, стадион, спорт. школа с бассейном, магазины, торгово-развлекательные центры с кинотеатрами, аптеки, банки, городская клиническая больница, а также рядом находятся национальный парк "Лосиный остров" и аква-парк;
- удобное транспортное сообщение: в пешей доступности ж/д станция Мытищи - от неё можно доехать скоростной электричкой до центра Москвы за 18 минут; с расположенного неподалеку автовокзала курсируют автобусы до Пироговского водохранилища, ТРЦ "Июнь" и многих других мест; 10 минут пешком до остановки на Ярославском шоссе, откуда автобусом до м. ВДНХ 15 минут.













































































