Код объекта: 2014329.
Продаётся 1-комнатная квартира в современном жилом комплексе "Яуза Парк".
Описание квартиры:
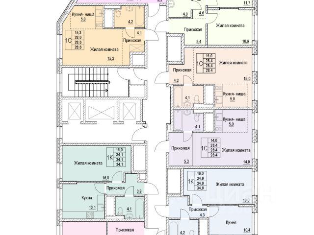
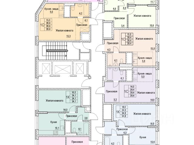
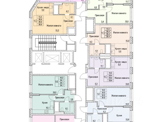
Квартира расположена на 10-м этаже 22-этажного дома. Ключи в июле 2027 года. Общая площадь — 36,2 кв. м, высота потолка — 2,7 м. Окна выходят во двор, не будет слышно шума железной дороги и Ярославского шоссе. Продуманная планировка (евродвушка: кухня-гостиная и спальня), окна в пол, французский балкон, просторная прихожая с нишей для шкафа. Предчистовая отделка (ровные белые стены, стяжка пола, выводы под светильники и розетки и т.п.). Будущий собственник сможет быстро адаптировать пространство под свои нужды, в том числе эргономично расставить мебель.
Дом и двор:
Жилой комплекс "Яуза Парк" - это проект "Серия Плюс" , который предлагает высокий уровень комфорта и развитую инфраструктуру. Проект состоит из 20 разновысотных корпусов с индивидуальной архитектурой от российских бюро "КАТАРСИС" и RHIZOME. Дизайнерское лобби, парк во дворе, магазины и кафе - все это станет частью вашей повседневной жизни. Покупки, услуги, места для отдыха и встреч — всё это можно получить рядом с домом и интегрировать в собственный сценарий дня. Отличительной особенностью проекта станет архитектурная подсветка и башня XIX века с современной архитектурой.
Транспортная доступность:
до ж/д станции Мытищи 5 мин пешком, 25 минут - и вы на метро Комсомольская, в центре Москвы. Электрички ходят каждые 5-7 минут, без выходных и перерывов. Также есть удобный выезд на Ярославское шоссе. За 20 минут можно доехать до метро Медведково, за 10 минут доехать до МКАД.
Инфраструктура рядом:
На территории жилого квартала появится школа и несколько детских садов, поликлиника и паркинг для безопасной стоянки автомобилей, пешеходный бульвар и благоустроенная набережная реки Яуза для прогулок и отдыха. Гулять, отдыхать, играть с детьми и заниматься спортом в "Яуза парке" можно рядом с домом. Купить продукты или позавтракать — тоже: на первых этажах домов работают магазины и кафе. Рядом поликлиника, МФЦ и фитнес-клуб. Для прогулок на свежем воздухе в 10 минутах пешком — Мытищинский ЦПКиО, а в 20 минутах — набережная Яузы.
Условия продажи:
Готовы к быстрой сделке. Продажа по переуступке. Один взрослый собственник. Без обременений.
В долгосрочной перспективе цена на квартиру растёт. Это делает её одним из наиболее разумных и безопасных решений для вложений на будущее.
Работать с МИЭЛЬ выгодно и надёжно:
- возможна ипотека с особыми условиями для клиентов МИЭЛЬ от банков-партнёров, работаем с любыми источниками финансирования (материнский капитал, военный сертификат и т.д.)
- бонусы по партнёрским программам МИЭЛЬ на товары и услуги от известных брендов