306 211 ₽/м²
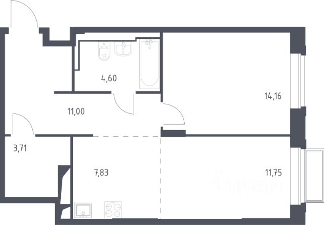
Строим кварталы для жизни с заботой о будущем. Предлагается 1-комнатная квартира комфорт-класса площадью 36,3 кв.м в корпусе 1 на 25-м этаже, в жилом комплексе "Долина Яузы". Квартиры комплекса — на выбор: могут быть как с отделкой, так и без. В случае с готовой отделкой в комнатах и прихожей уже будут обои, натяжные потолки и ламинат, а в санузлах — керамогранит на полу и керамическая плитка на стенах. Мы подведем все коммуникации и установим сантехнику. Помимо базовой отделки, вы можете дополнительно выбрать улучшенную версию. В ней используются износостойкие материалы, ударопрочные плинтуса, ламинат с фаской — все для долговечного использования. Приобрести квартиру возможно по специальным акциям от застройщика, с текущими условиями акций можно ознакомиться в блоке "Акций". Цена динамическая и может отличаться, уточняйте актуальность у застройщика. Жилой комплекс комфорт-класса "Долина Яузы" расположен на северо-востоке Московской области, в 200 м от МКАД. До ж/д станции Перловская или набережной реки Яуза можно дойти за 10 минут. В шаговой доступности находятся детские сады, школы, стоматология и поликлиника. Есть супермаркеты и кофейни, детские и спортивные площадки, зоны отдыха под навесом. У каждого дома будет собственный двор-сад, где посадят плодовые и вечнозеленые деревья и кустарники. Территория около жилого комплекса закрыта от машин и посторонних и круглосуточно охраняется. В жилом комплексе "Долина Яузы" большой выбор квартир: от однокомнатных до трехкомнатных. Квартиры сдаются с готовой отделкой или без нее.










































































