Первичная продажа
С отделкой
сдача ГК: 4 кв. 2027 года
Медведково
19 минут на транспорте
11 805 798 ₽
230 582 ₽/м²
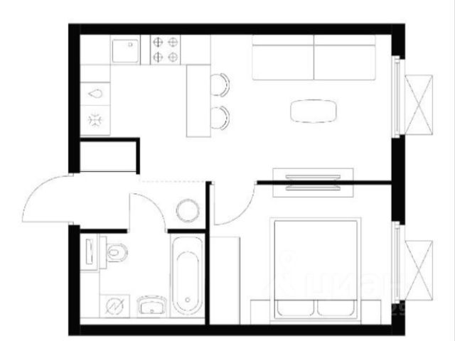
Продаётся 2-комн. квартира площадью 51,2 кв.м на 21 этаже 25 этажного дома (Корпус 2.2, Секция 1) проекта ПИК Ярославский квартал. Светлый просторный подъезд на уровне земли, функциональная планировка, большие окна, с отделкой.
Проект "Ярославский квартал" возводится в Мытищах, в 6 км от МКАД. Жилой квартал, состоящий из 8 корпусов, строится рядом с Ярославским шоссе и имеет удобный заезд с крупной автомагистрали.
На территории проекта появится школа, детский сад и пешеходный бульвар. Индивидуальные дизайны фасадов для "Ярославского квартала" разработало петербургское архитектурное бюро. В их портфолио вошли работы для Московского музея современного искусства, ГЦСИ, Манифеста 10 и ЦВЗ Манеж.
За 7 минут можно дойти пешком до ближайшей автобусной остановки. Столько же займёт дорога до "Лосиного острова" - облагороженного парка с разными активностями для всей семьи, благоустроенными зонами для отдыха, местами для прогулок и пробежек на свежем воздухе.
Доехать на автомобиле до Ярославского шоссе получится за 3 минуты, до станции "Мытищи" - за 9 минут, до МКАД - за 15 минут. Артикуль 1013286 (ООО "Специализированный "ГЕОПАРК")

























































































