


234 421 ₽/м²
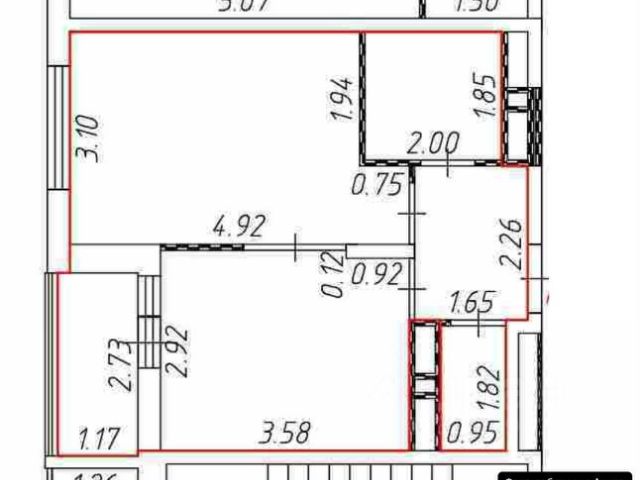
Идеальная квартира в центре современного микрорайона Новое Медведково. Удобная планировка, высокие потолки (3.40м) с возможностью организации второго пространства. Ухоженная придомовая территория оборудована детскими и спортивными площадками, прогулочными аллеями и зонами отдыха. Во дворе дома подземный паркинг. Рядом находится лингвистическая гимназия с бассейном, детские сады, рядом множество сетевых магазинов, медицинских учреждений, центров дополнительного образования. В шаговой доступности Пироговский лесопарк и Рупасовские пруды. Хорошая транспортная доступность, до метро "Медведково" 20 минут, до станции "Мытищи" 10 минут. Быстрый выезд на МКАД и Осташковское шоссе. Оперативный показ, быстрый выход на сделку. Помощь в одобрении ипотеки по выгодным ставкам. Звоните! Купить 1-комнатную квартиру на проспекте Астрахова в городе Мытищи.






















































































