Первичная продажа
С отделкой
Онлайн-бронирование
сдача ГК: 3 кв. 2026 года
Медведково
9 минут на транспорте
9 934 670 ₽
334 276 ₽/м²
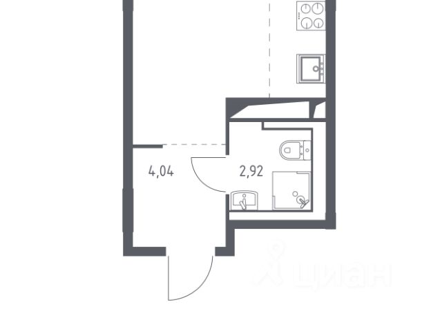
Строим кварталы для жизни с заботой о будущем. Предлагается 1-комнатная квартира комфорт-класса площадью 29.72 кв.м в корпусе 3 на 12-м этаже, в жилом комплексе "Долина Яузы".
Квартиры комплекса - на выбор: могут быть как с отделкой, так и без. В случае с готовой отделкой в комнатах и прихожей уже будут обои, натяжные потолки и ламинат, а в санузлах - керамогранит на полу и керамическая плитка на стенах. Мы подведем все коммуникации и установим сантехнику.
Помимо базовой отделки, вы можете дополнительно выбрать улучшенную версию. В ней используются износостойкие материалы, ударопрочные плинтуса, ламинат с фаской - все для долговечного использования.
Приобрести квартиру возможно по специальным акциям от застройщика, с текущими условиями акций можно ознакомиться в блоке "Акций".
Цена динамическая и может отличаться, уточняйте актуальность у застройщика.
Жилой комплекс комфорт-класса "Долина Яузы" расположен на северо-востоке Московской области, в 200 м от МКАД. До ж/д станции Перловская или набережной реки Яуза можно дойти за 10 минут.
В шаговой доступности находятся детские сады, школы, стоматология и поликлиника. Есть супермаркеты и кофейни, детские и спортивные площадки, зоны отдыха под навесом.
У каждого дома будет собственный двор-сад, где посадят плодовые и вечнозеленые деревья и кустарники. Территория около жилого комплекса закрыта от машин и посторонних и круглосуточно охраняется.
В жилом комплексе "Долина Яузы" большой выбор квартир: от однокомнатных до трехкомнатных. Квартиры сдаются с готовой отделкой или без нее. Продам квартиру на улице Трудовая в городе Мытищи.













































































